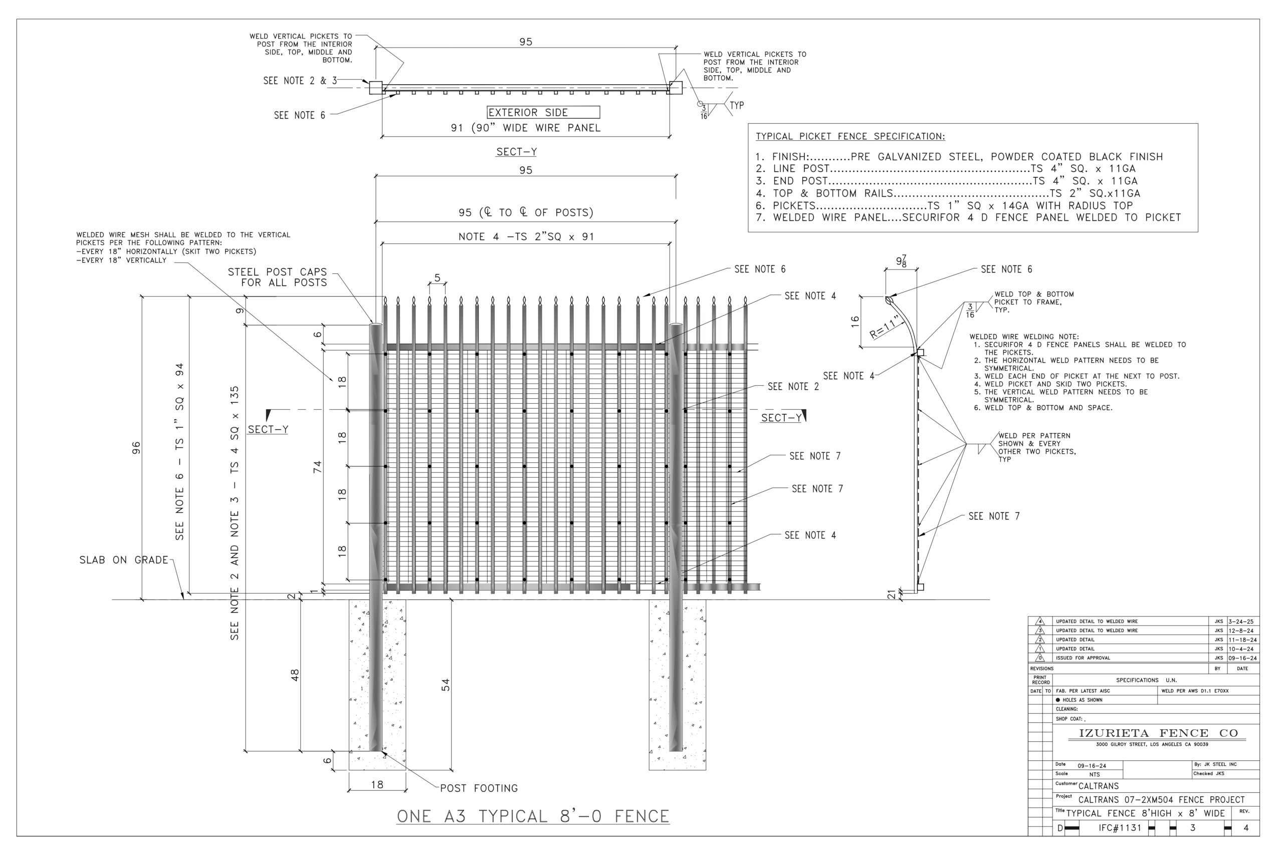
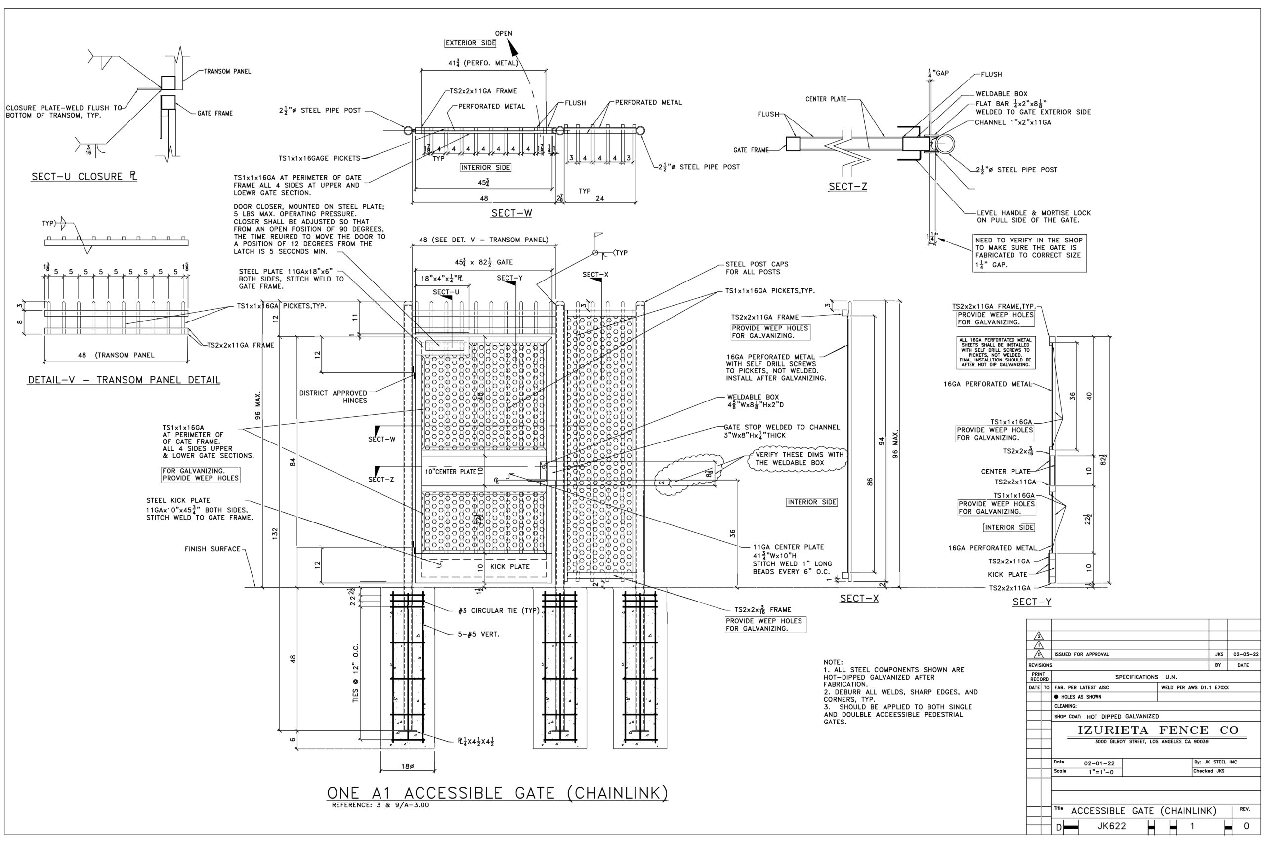
Our CAD detailer assist our customers by providing detailed, scaled drawings of the products required on a project by project basis. These drawings can then be submitted by our customer as a “shop drawing” during their submittal process saving them time and money. This process helps ensure all parties involved understand the look and function of the proposed fences and gates.
Our team will also take a CAD file provided by our customer or an architect and incorporate the design into the finished product truly taking it from concept to reality. We pride ourselves on being a true full service fence fabricator.
Our design team can create full set of plans, structural calculations and drawings and submit them to the building and safety department for review. Once approved, we can pull permits and start you project.




